SU模型首页 餐饮空间

中式餐厅CAD图纸,中式餐厅CAD施工图下载

资源大小:12.60 下载文件

资源详情

编号: 23193

软件: SketchUp2007

大小: 12.60

时间: 20200527

关键字:

模型介绍

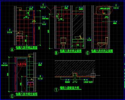
 中式餐厅CAD图纸,中式餐厅CAD施工图下载内容简介:里面含有平面布置图,立面图,剖面图,节点大样图,图纸制作规范,具有参考价值。

部分图纸如下:

立面,节点.jpg

 

立面节点

 

立面.jpg

 

立面图

 

立面1.jpg

 

立面图

 

立面2.jpg

 

立面图

 

立面节点.jpg

 

立面节点

 

 

更多

热门标签

找设计师请拨打:

180-8488-1111
登录