SU模型首页 餐饮空间

中式餐厅CAD施工图,餐厅CAD建筑图纸下载

资源大小:25.40 下载文件

资源详情

编号: 23192

软件: SketchUp2007

大小: 25.40

时间: 20200527

关键字:

模型介绍

 中式餐厅CAD施工图,餐厅CAD建筑图纸下载内容简介:里面包含了平面布置图,节点大样图,立面图,剖面图,图纸制作规范,可供参考。

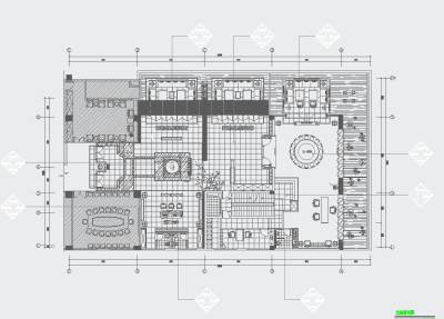
部分图纸展示如下:

<a href=https://www.yitu.cn/su/7872.html target=_blank class=infotextkey>地</a>面材质.jpg

 

面材质分布图

 

<a href=https://www.yitu.cn/su/7458.html target=_blank class=infotextkey>吊顶</a>布置.jpg

 

吊顶分布图

 

<a href=https://www.yitu.cn/su/7458.html target=_blank class=infotextkey>吊顶</a>尺寸.jpg

 

吊顶尺寸

 

立面索引.jpg

 

立面索引

 

<a href=https://www.yitu.cn/su/7392.html target=_blank class=infotextkey>平面</a>布置.jpg

 

平面布置图

 

 

更多

热门标签

找设计师请拨打:

180-8488-1111
登录