SU模型首页 餐饮空间

特色餐厅CAD施工图,餐厅CAD建筑图纸下载

资源大小:57.70 下载文件

资源详情

编号: 23188

软件: SketchUp2007

大小: 57.70

时间: 20200527

关键字:

模型介绍

 特色餐厅CAD施工图,餐厅CAD建筑图纸下载内容简介:里面含有平面布置图,立面图,剖面图,天布置图,节点大样图,图纸制作规范,具有参考价值。

部分图纸展示如下:

3F<a href=https://www.yitu.cn/su/7392.html target=_blank class=infotextkey>平面</a>.jpg3F<a href=https://www.yitu.cn/su/7392.html target=_blank class=infotextkey>平面</a>.jpg

 

平面布置图

 

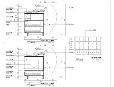
<a href=https://www.yitu.cn/sketchup/SPA/index.html target=_blank class=infotextkey>SPA</a><a href=https://www.yitu.cn/su/7043.html target=_blank class=infotextkey>服务台</a>节点-布局3.jpg

 

节点大样

 

<a href=https://www.yitu.cn/sketchup/SPA/index.html target=_blank class=infotextkey>SPA</a><a href=https://www.yitu.cn/su/7043.html target=_blank class=infotextkey>服务台</a>节点-布局4.jpg

 

节点大样

 

大报告厅-布局1.jpg

餐厅布局

 

 

更多

热门标签

找设计师请拨打:

180-8488-1111
登录