SU模型首页 餐饮空间

现代豪华餐厅CAD施工图,餐厅CAD建筑图纸下载

资源大小:54.90 下载文件

资源详情

编号: 23186

软件: SketchUp2007

大小: 54.90

时间: 20200527

关键字:

模型介绍

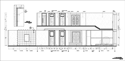
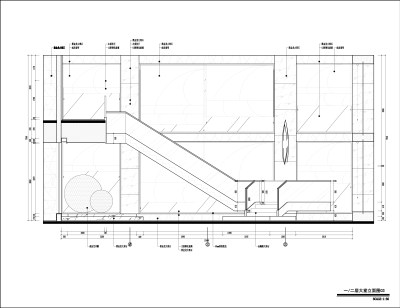
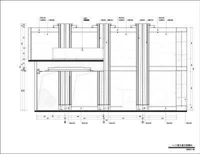
 现代豪华餐厅CAD施工图,餐厅CAD建筑图纸下载内容简介:里面含有平面布置图,剖面图,节点大样图,立面图,灯位布置图等等,图纸制作详细,可供参考。

部分图纸如下:

名师联 (1).jpg

 

立面图

 

名师联 (2).jpg

 

立面图

 

名师联 (3).jpg

 

立面图

 

名师联 (4).jpg

 

立面图

 

名师联 (5).jpg

 

立面图

 

 

 

 

更多

热门标签

找设计师请拨打:

180-8488-1111
登录