SU模型首页 餐饮空间

现代餐厅CAD施工图,餐厅CAD建筑图纸下载

资源大小:18.90 下载文件

资源详情

编号: 23181

软件: SketchUp2007

大小: 18.90

时间: 20200527

关键字:

模型介绍

 现代餐厅CAD施工图,餐厅CAD建筑图纸下载内容简介;里面含有详细的平面布置图,立面图,剖面图等等,图纸制作规范可供参考。

部分图纸如下;

01(1).jpg

 

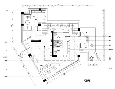
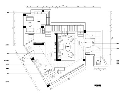
平面布置图

 

02(1).jpg

 

平面布置图

 

03(1).jpg

 

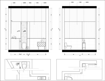
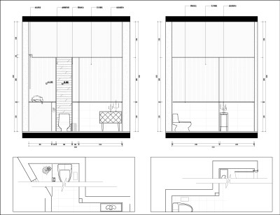
立面图

 

04(1).jpg

 

剖面图

 

05(1).jpg

 

剖面图

 

 

05(1).jpg

更多

热门标签

找设计师请拨打:

180-8488-1111
登录