SU模型首页 餐饮空间

混搭风面馆CAD施工图,面馆CAD建筑图纸下载

资源大小:18.30 下载文件

资源详情

编号: 23180

软件: SketchUp2007

大小: 18.30

时间: 20200527

关键字:

模型介绍

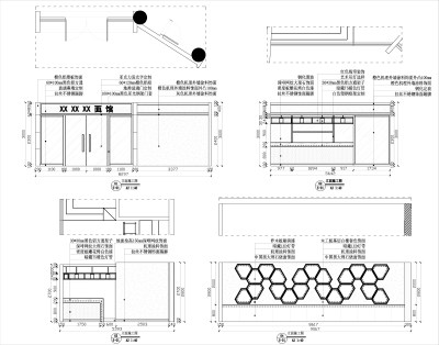
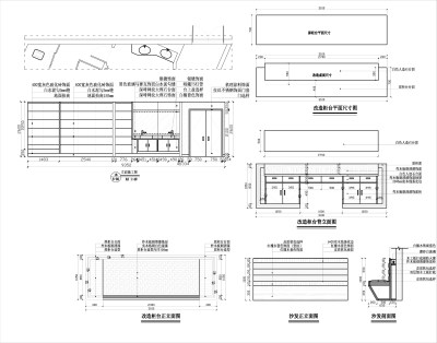
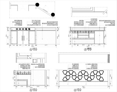
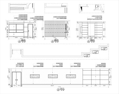
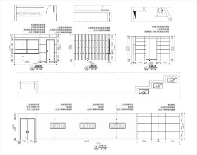
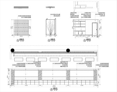
 混搭风面馆CAD施工图,面馆CAD建筑图纸下载内容简介:里面含有精致的效果图,详细的平面布置图,立面图,剖面图,节点大样图,图纸制作规范,可供参考。

部分图纸展示如下;

01.jpg01.jpg

 

立面图

 

02.jpg

 

立面图

 

03.jpg

 

立面图

 

04.jpg

 

剖面立面图

 

 

03.jpg

更多

热门标签

找设计师请拨打:

180-8488-1111
登录