SU模型首页 餐饮空间

复古餐厅CAD图纸,餐厅CAD施工图下载

资源大小:54.80 下载文件

资源详情

编号: 23127

软件: SketchUp2007

大小: 54.80

时间: 20200526

关键字:

模型介绍

 复古餐厅CAD图纸餐厅CAD施工图下载内容简介:里面包含了总平面图,平面布置图,立面图,剖面图,图纸制作规范,可作为参考样本,部分图纸如下:

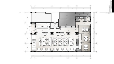
01-01  1F<a href=https://www.yitu.cn/su/7392.html target=_blank class=infotextkey>平面</a>图.jpg

 

平面布置图

 

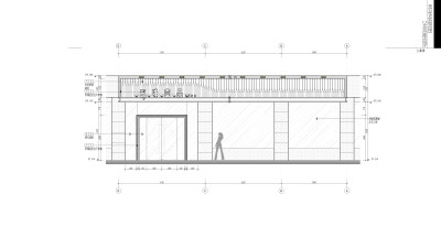
02-02  立面图.jpg

 

立面图

 

02-03 立面图.jpg

 

立面图

 

02-04 立面图.jpg

 

立面图

 

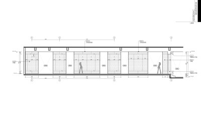
02-07 立面图.jpg

立面图

 

 

 

 

更多

热门标签

找设计师请拨打:

180-8488-1111
登录