SU模型首页 餐饮空间

全套配餐中心CAD图纸,配餐中心CAD建筑图纸下载

资源大小:0.70 下载文件

资源详情

编号: 22121

软件: SketchUp2007

大小: 0.70

时间: 20191223

关键字:

模型介绍

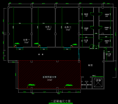
 全套配餐中心CAD图纸,配餐中心CAD建筑图纸下载内容简介:图纸含有隔墙尺寸图、平面图、电路点位布置图等,作图规范,内容详实,具有较高的参考价值。

部分图纸展示:

QQ截图20191223152505.png

 

隔墙尺寸图

 

QQ截图20191223152511.png

 

隔墙尺寸图

 

QQ截图20191223152522.png

 

沟布置图

 

QQ截图20191223152528.png

 

给排布置图

 

QQ截图20191223152535.png

 

电路点位布置图

 

QQ截图20191223152542.png

 

电路点位布置图

更多

热门标签

找设计师请拨打:

180-8488-1111
登录