SU模型首页 餐饮空间

茶馆装修CAD图纸,茶馆CAD平面布置图。

资源大小:3.20 下载文件

资源详情

编号: 20792

软件: SketchUp2007

大小: 3.20

时间: 20191203

关键字:

模型介绍

茶馆装修CAD图纸,茶馆CAD平面布置图免费下载:立面图和平面图都放置在一起方便管理减少文件的使用能方便我们找图,带建筑效果图设计施工图套图一整套施工图可供下载。

部分图纸展示:

QQ截图20191203105549.png

 

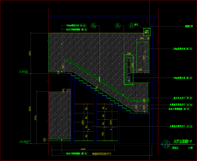
大厅立面图E

 

QQ截图20191203105603.png

 

大厅立面图F

 

QQ截图20191203105738.png

 

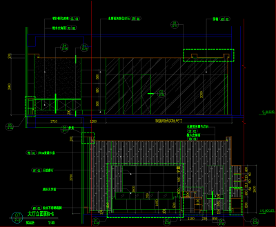
大厅立面图G

 

QQ截图20191203105822.png

 

一层应急灯具平面布置图

 

QQ截图20191203105842.png

 

二层应急灯具平面

 

QQ截图20191203105855.png

 

一层灯具平面布置图

 

QQ截图20191203105905.png

 

二层灯具平面布置图

 

 

更多

热门标签

找设计师请拨打:

180-8488-1111
登录