SU模型首页 餐饮空间

东方威尼斯咖啡厅装修CAD图纸,cad施工图纸

资源大小:1.60 下载文件

资源详情

编号: 20775

软件: SketchUp2007

大小: 1.60

时间: 20191203

关键字:

模型介绍

 东方威尼斯咖啡厅装修CAD图纸,CAD平面布置图免费下载:立面图和平面图都放置在一起方便管理减少文件的使用能方便我们找图,带建筑效果图设计施工图套图一整套施工图可供下载。

部分图纸展示:

QQ截图20191203113849.png

 

一层天平面

 

QQ截图20191203113904.png

 

二层平面

 

QQ截图20191203113913.png

 

二层平面放线图

 

QQ截图20191203113937.png

 

二层面铺贴图

 

QQ截图20191203114010.png

 

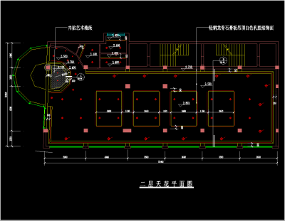
二层天平面

 

QQ截图20191203114042.png

 

A立面图

 

QQ截图20191203114053.png

 

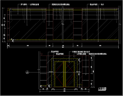
C立面图

 

QQ截图20191203114113.png

 

A立面图

更多

热门标签

找设计师请拨打:

180-8488-1111
登录