SU模型首页 餐饮空间

食堂平面布置设计图,食堂建筑图纸下载

资源大小:0.50 下载文件

资源详情

编号: 20706

软件: SketchUp2007

大小: 0.50

时间: 20191202

关键字:

模型介绍

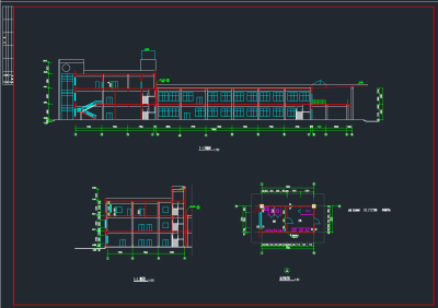
 食堂平面布置设计图,食堂建筑图纸下载内容简介:图纸含有食堂平面图、示意图、三层平面图、背面图、剖面图等,内容详实,尺寸合理,具有较高的参考价值。

部分图纸展示:

QQ截图20191202165555.png

 

示意图

 

QQ截图20191202165601.png

 

三层平面

 

QQ截图20191202165605.png

 

背面图

 

QQ截图20191202165619.png

 

剖面图

更多

热门标签

找设计师请拨打:

180-8488-1111
登录