SU模型首页 餐饮空间

餐厅区装饰墙,酒架造型CAD立面图.餐厅CAD施工图

资源大小:3.10 下载文件

资源详情

编号: 20643

软件: SketchUp2007

大小: 3.10

时间: 20191202

关键字:

模型介绍

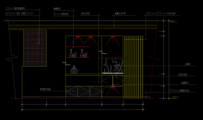
 餐厅装饰墙,酒柜CAD施工图,餐厅CAD布置图下载内容简介:图纸含有平面图、天布置图、开关布置图、立面图等,内容详实,具有较高的参考价值。

部分图纸展示:

QQ截图20191129172702.png

 

餐厅装饰墙,酒柜CAD施工图

 

QQ截图20191129172719.png

 

餐厅装饰墙,酒柜CAD施工图

 

QQ截图20191129172738.png

 

餐厅装饰墙,酒柜CAD施工图

 

QQ截图20191129172755.png

 

餐厅装饰墙,酒柜CAD施工图

 

QQ截图20191129172810.png

 

餐厅装饰墙,酒柜CAD施工图

 

QQ截图20191129172822.png

 

餐厅装饰墙,酒柜CAD施工图

更多

热门标签

找设计师请拨打:

180-8488-1111
登录