SU模型首页 餐饮空间

西厢记餐厅施工图,餐厅CAD建筑图纸下载

资源大小:20.60 下载文件

资源详情

编号: 20562

软件: SketchUp2007

大小: 20.60

时间: 20191129

关键字:

模型介绍

 西厢记餐厅施工图,餐厅CAD建筑图纸下载内容简介:图纸含有平面图、天布置图、开关布置图、立面图等,内容详实,具有较高的参考价值。

部分图纸展示:

QQ截图20191129104022.png

 

墙砖剖面图

 

QQ截图20191129104207.png

 

包管详图

 

QQ截图20191129104447.png

 

暗门剖面图

 

QQ截图20191129104835.png

 

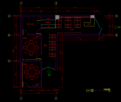
平面布置图

 

QQ截图20191129104901.png

 

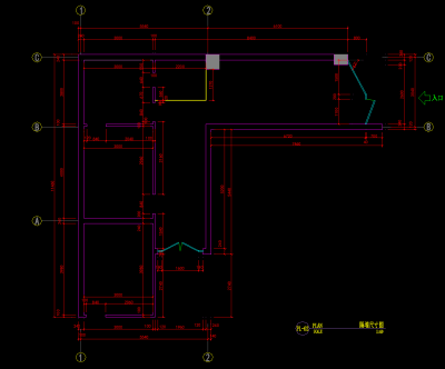
隔墙尺寸图

 

QQ截图20191129104913.png

 

家具尺寸图

 

QQ截图20191129104925.png

 

布置图

 

QQ截图20191129104935.png

 

灯具尺寸图

 

更多

热门标签

找设计师请拨打:

180-8488-1111
登录