SU模型首页 餐饮空间

喜福会酒楼施工图,酒楼CAD建筑图纸下载

资源大小:11.60 下载文件

资源详情

编号: 20500

软件: SketchUp2007

大小: 11.60

时间: 20191129

关键字:

模型介绍

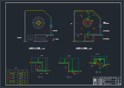
 喜福会酒施工图,酒CAD建筑图纸下载内容简介:图纸含有顶面图、节点大样图、立面图、天布置图、开关布置图,内容详实,具有较高的参考价值。

部分图纸展示:

QQ截图20191129090559.png

 

立面图

 

QQ截图20191129090612.png

 

顶面图

 

QQ截图20191129090618.png

 

立面图

 

QQ截图20191129090630.png

 

立面图

 

QQ截图20191129090637.png

 

立面图

 

QQ截图20191129090643.png

 

节点大样图

 

QQ截图20191129090655.png

 

顶面图

更多

热门标签

找设计师请拨打:

180-8488-1111
登录