SU模型首页 餐饮空间

某别墅型私人接待餐厅装饰施工图,餐厅CAD建筑图纸下载

资源大小:1.00 下载文件

资源详情

编号: 20426

软件: SketchUp2007

大小: 1.00

时间: 20191128

关键字:

模型介绍

 某别墅型私接待餐厅装饰施工图,餐厅CAD建筑图纸下载内容简介:图纸含有天布置图、开关布置图、总平面图、内容详实,具有较高的参考价值。

部分图纸展示:

QQ截图20191128141007.png

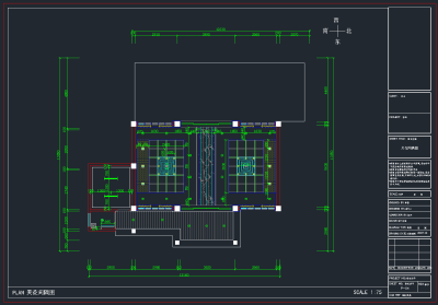
QQ截图20191128141049.png

 

布置图

 

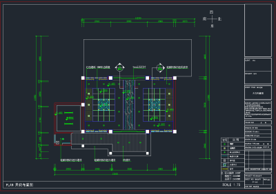
QQ截图20191128141054.png

 

间隔图

 

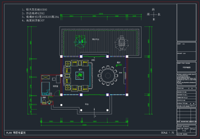
QQ截图20191128141059.png

 

平面索引图

 

QQ截图20191128141116.png

 

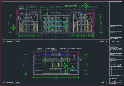
立面图

 

QQ截图20191128141121.png

 

立面图

 

QQ截图20191128141129.png

 

剖面图

更多

热门标签

找设计师请拨打:

180-8488-1111
登录