SU模型首页 餐饮空间

花食间施工图

资源大小:39.20 下载文件

资源详情

编号: 17004

软件: SketchUp2007

大小: 39.20

时间: 20191105

关键字:

模型介绍

 图纸深度:施工图              图纸格式:JPG,CAD2000

包含图片:效果图建筑面积:720㎡包含:封面、施工说明、灯具示例表、装饰图例说明、材料表、目录、原始建筑图、平面布置图、天设计图、天尺寸图、灯具尺寸图、开关示意图、插座示意图、立面索引图、过道立面图、卫生间立面图、包间立面图、餐厅立面图、厨房立面图、大样图、效果图................................

项目根据实际情况的了解,做出一系列合理的调整规划与设计思考,针对各个区域做出相应的策略,完善各方面的装修建设,发挥出项目优势,推动项目的发展与进步。

 

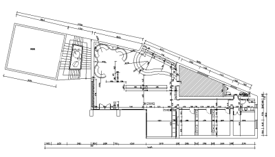
<a href=https://www.yitu.cn/su/7392.html target=_blank class=infotextkey>平面</a>尺寸图

 

平面尺寸图

 

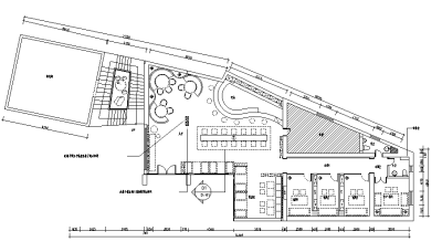
<a href=https://www.yitu.cn/su/7392.html target=_blank class=infotextkey>平面</a><a href=https://www.yitu.cn/su/7590.html target=_blank class=infotextkey>设计</a>图

 

平面设计

 

天<a href=https://www.yitu.cn/sketchup/huayi/index.html target=_blank class=infotextkey>花</a>尺寸图

 

尺寸图

 

天<a href=https://www.yitu.cn/sketchup/huayi/index.html target=_blank class=infotextkey>花</a><a href=https://www.yitu.cn/su/7590.html target=_blank class=infotextkey>设计</a>图

 

设计

 

包间

 

包间

 

<a href=https://www.yitu.cn/su/7996.html target=_blank class=infotextkey>大厅</a>

 

大厅

更多

热门标签

找设计师请拨打:

180-8488-1111
登录