包含图片:效果图建筑面积:375㎡楼
层数:1层【日式餐厅】上海金匠日式寿司店丨375㎡丨效果图+施工图+物料+灯具+机电+暖通+厨房图丨80M丨2018.06
资料内容包含:效果图、CAD施工图(图纸目录,施工图设计说明、平面图,立面图,节点大样,灯具图纸,机电,暖通和厨房图纸等)材料表,方案,物料等
内容简介:项目的实际情况的了解,做出一系列合理的调整规划与设计思考,针对各个区域做出相应的策略,完善各方面的装修建设,发挥出项目优势,推动项目的发展与进步。

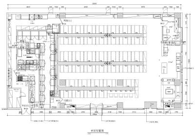
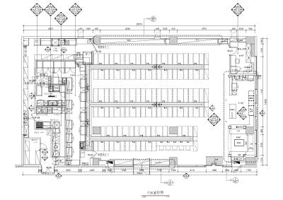
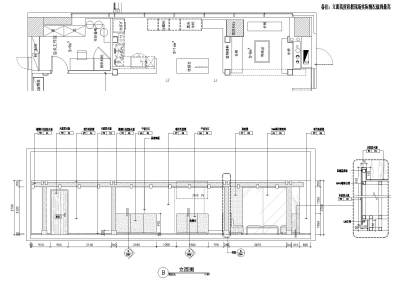
金匠寿司店平面布置图

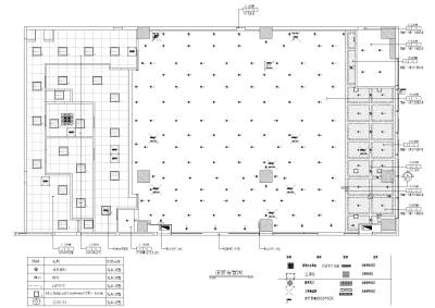
金匠寿司店天花布置图

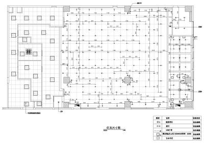
金匠寿司店灯具尺寸图

金匠寿司店地面铺装图

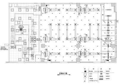
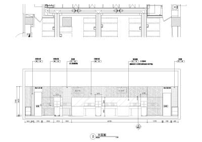
金匠寿司店空调风口图

金匠寿司店立面索引图

金匠寿司店立面图

金匠寿司店立面图2

金匠寿司外立面效果图

金匠寿司店效果图
180-8488-1111
登录