包含图片:效果图,实景照片楼层数:3层[天津]长城-金玉满堂中式海鲜火锅店施工图+效果图+实景拍摄
资料内容包含:效果图、CAD施工图(图纸目录,施工图设计说明、一二三平面图,立面图,节点大样等)材料表等
内容简介:项目采用现代风格设计,通过项目的实际情况的了解,做出一系列合理的调整规划与设计思考,针对各个区域做出相应的策略,完善各方面的装修建设,发挥出项目优势,推动项目的发展与进步。




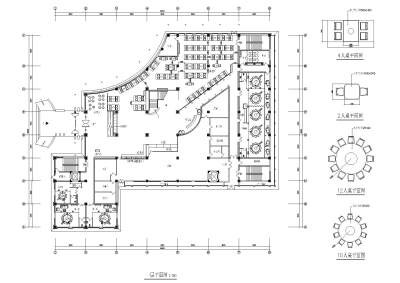
金玉满堂中式海鲜火锅店一层隔墙尺寸图

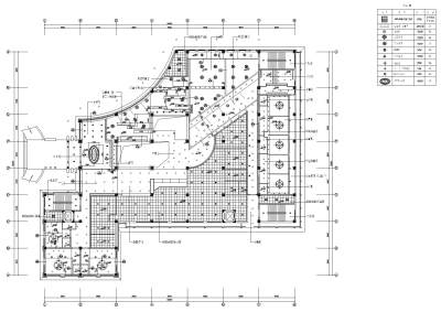
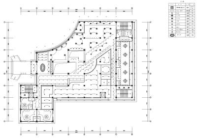
金玉满堂中式海鲜火锅店一层开关布置图


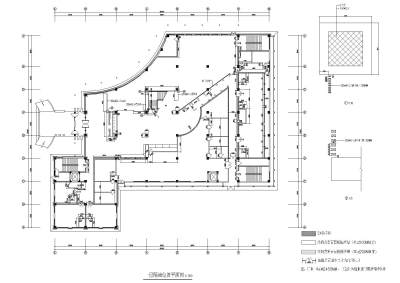
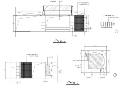
金玉满堂中式海鲜火锅店一层立面图

金玉满堂中式海鲜火锅店一层立面图2

金玉满堂中式海鲜火锅店实景照片

金玉满堂中式海鲜火锅店实景照片

金玉满堂中式海鲜火锅店实景照片
180-8488-1111
登录