SU模型首页 办公空间

现代办公室cad设计图,办公室cad图纸下载

资源大小:54.30 下载文件

资源详情

编号: 91578

软件: SketchUp2007

大小: 54.30

时间: 20211102

关键字:

模型介绍

                                  空间划分:成套办公空间                                                           办公类型:办公室

                                  图纸深度:施工图                                                                      图纸格式:JPG

                                  设计风格:现代

资料为:现代办公室cad设计

资料内容包括:全套施工图、二十八层平面图、二十七层平面图、立面图、平面布置图、效果图。空间设置合理规范,具有较高的参考价值,可作为参考学习的模板,供设计师、建筑师下载参考。

部分图纸展示如下:

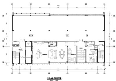
二十八层<a href=https://www.yitu.cn/su/7392.html target=_blank class=infotextkey>平面</a>图.jpg

 

二十八层平面

 

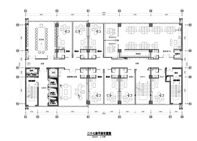
二十七层<a href=https://www.yitu.cn/su/7392.html target=_blank class=infotextkey>平面</a>图.jpg

 

二十七层平面

 

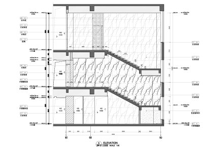
立面图.jpg

 

立面图

 

立面图1.jpg

 

立面图

 

立面图2.jpg

 

立面图

 

<a href=https://www.yitu.cn/su/7392.html target=_blank class=infotextkey>平面</a>布置图.jpg

 

平面布置图

更多

热门标签

找设计师请拨打:

180-8488-1111
登录