SU模型首页 办公空间

现代风办公室样板房CAD施工图,样板房CAD建筑图纸下载

资源大小:7.50 下载文件

资源详情

编号: 20316

软件: SketchUp2007

大小: 7.50

时间: 20191127

关键字:

模型介绍

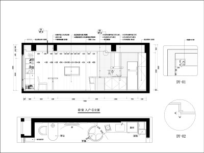
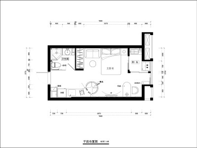
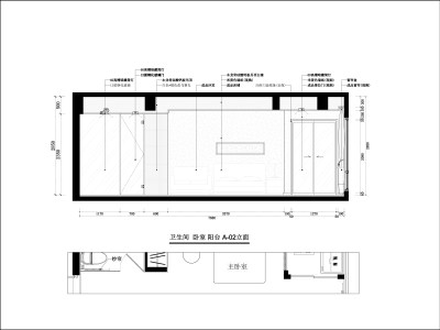
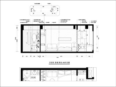
 现代风办公室样板房CAD施工图,样板房CAD建筑图纸下载内容简介:图纸含有面铺装图、天布置图、开关布置图、天灯具布置图等,内容详实,具有较高的参考价值。

部分图纸展示:

01.jpg

 

现代风办公室样板房CAD施工图

02.jpg

现代风办公室样板房CAD施工图

03.jpg

现代风办公室样板房CAD施工图

04.jpg

现代风办公室样板房CAD施工图

05.jpg

 

现代风办公室样板房CAD施工图

更多

热门标签

找设计师请拨打:

180-8488-1111
登录