SU模型首页 办公空间

金德威科技园办公楼施工图,办公楼CAD建筑图纸下载

资源大小:33.80 下载文件

资源详情

编号: 20296

软件: SketchUp2007

大小: 33.80

时间: 20191127

关键字:

模型介绍

 金德威科技园办公施工图,办公CAD建筑图纸下载内容简介:图纸含有四层面布置图、天布置图、各层平面布置图、立面图等,内容详实,具有较高的参考价值。

部分图纸展示:

QQ截图20191127161207.png

 

四层面布置图

 

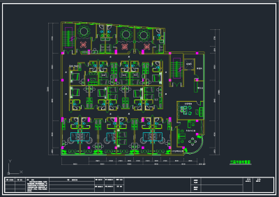
QQ截图20191127161221.png

 

四层平面布置图

 

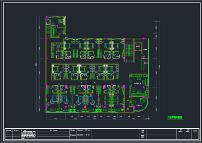
QQ截图20191127161252.png

 

三层平面布置图

 

QQ截图20191127161257.png

 

三层面布置图

 

QQ截图20191127161305.png

 

顶面布置图

 

QQ截图20191127161314.png

 

四层顶面布置图

 

QQ截图20191127161326.png

 

平面

 

QQ截图20191127161335.png

 

立面图

更多

热门标签

找设计师请拨打:

180-8488-1111
登录