SU模型首页 办公空间

办公楼现代风格,办公楼设计CAD施工图

资源大小:17.00 下载文件

资源详情

编号: 19898

软件: SketchUp2007

大小: 17.00

时间: 20191124

关键字:

模型介绍

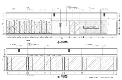
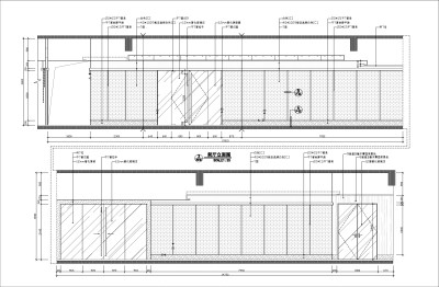
办公现代风格,办公设计CAD施工图内容简介:平面图、立面图、设计图、立面详图、设计大样图、设计立面图等,设计内容详细,设计文字统一,可供参考。

部分详图如下:

01.jpg

 

平面布置图

 

02.jpg

 

前厅立面图

 

03.jpg

 

前厅立面图

 

04.jpg

 

过道立面图

 

05.jpg

 

立面图

 

360截图20191124172137706.jpg

 

缩略图

更多

热门标签

找设计师请拨打:

180-8488-1111
登录