建筑功能:工业建筑 高度类别:单层建筑,高层建筑
结构形式:其他结构 建筑面积:34832㎡
图纸深度:施工图 负荷等级:一级,二级,三级
防雷等级:第二类,第三类 接地方式:TN-S,TN-C-S
项目位置:上海 强电设计:供配电系统,配变电所,电气照明,建筑物防雷,接地安全,其它
本工程为某知名科技制造业公司生产及辅助用房新建工程。总建筑面积34832平方米,分布有3栋建筑(一号厂房、二号厂房、门卫室):其中一号厂房地上十三层,地下一层,建筑面积30094平方米,属于丙类高层厂房;二号厂房共一层,建筑面积808平方米,属于丙类单层厂房;另一栋为门卫及消防安保中心,建筑面积50平方米。一号厂房地下汽车库停车位为78辆,属于Ⅰ类汽车库。
一、设计范围
10kV/0.4kV变配电系统,电力配电系统,照明配电系统,防雷接地系统及保安措施。
二、图纸特点
本项目为企业厂房群电气设计,专业性较强,复杂程度适中。此套图纸内容较全,涵盖变配电所、建筑内电气、室外电气设计,有一定的参考价值。适合广大电气人员分析学习。
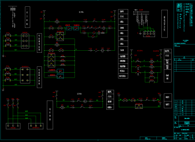
部分图纸展示:


变配电所照明平面图

变配电所电力平面图

变配电所电箱系统图

配电系统图
180-8488-1111
登录